en Son Servera

Gran adosado con mucho potencial en Son Servera

N°.Inm. YWC0181 Tipo de uso Residencial
Comercialización Venta Tipo de inmueble Casa
Subtipo de inmueble Casa de ciudad Lugar Son Servera
Superficie útil (vivienda) 263 m² Superficie parcela 309 m²
Número de estancias 8 Número de dormitorios 5
Número de baños 1 Superficie construida 309 m²
Suelo Piedra Número de plantas (del piso) 2
Plazas de aparcamiento 1 Garaje Aire acondicionado No disponible
Acristalamiento Acristalamiento simple Marcos de ventana Marcos de madera
Chimenea Precio de compra 315.000 €
N°.Inm. YWC0181
Tipo de uso Residencial
Comercialización Venta
Tipo de inmueble Casa
Subtipo de inmueble Casa de ciudad
Lugar Son Servera
Superficie útil (vivienda) 263 m²
Superficie parcela 309 m²
Número de estancias 8
Número de dormitorios 5
Número de baños 1
Superficie construida 309 m²
Suelo Piedra
Número de plantas (del piso) 2
Plazas de aparcamiento 1 Garaje
Aire acondicionado No disponible
Acristalamiento Acristalamiento simple
Marcos de ventana Marcos de madera
Chimenea
Precio de compra 315.000 €
Video zu dieser Immobilie
Video zu dieser Immobilie
3D-Rundgang zu dieser Immobilie
3D-Rundgang zu dieser Immobilie
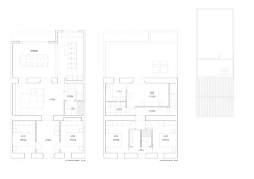
Descripción Del Inmueble Amplia casa de pueblo con mucho carácter y gran potencial en Son Servera.

Esta joya excepcional se encuentra en una ubicación muy solicitada a poca distancia del centro histórico de Son Servera. En un solar generoso de aprox. 300m2, la casa ofrece acceso por 2 calles y tiene un patio con terraza cubierta y trastero, un garaje y un jardín soleado con espacio para una piscina.

La espaciosa casa se extiende sobre 2 plantas, cada una de unos 120m2, e impresiona al entrar con un hall de entrada muy amplio con techo alto y vigas de madera vistas. Las puertas y ventanas de madera originales de los 2 amplios dormitorios que dan a la calle confieren a la casa un encanto auténtico. Una acogedora cocina con comedor contiguo y un salón con chimenea, así como un amplio cuarto de baño con bañera completan la planta baja.

La segunda planta ofrece otros 3 dormitorios dobles que dan a la calle y un estudio/habitación muy grande de unos 80m2 que se puede convertir en diferentes habitaciones, cuartos de baño o salas de ocio. Con algunas obras de reforma y un poco de imaginación, la propiedad se puede transformar en un hogar único y acogedor.

La casa está en muy buenas condiciones, pero necesita modernización y renovación. Elementos auténticos como las vigas de madera, las puertas y ventanas originales y la hermosa piedra de Mares pueden conservarse e integrarse en el concepto de renovación. La superficie exterior total es de unos 150m2 y ofrece espacio suficiente para un jardín privado con zona de barbacoa, zona de estar y piscina. Un garaje privado para 2 coches también está disponible.

Esta casa ofrece mucho potencial para los compradores que buscan una casa única y encantadora o que quieren realizar un proyecto de renovación.

 
Certificado energético
Tipo: En proceso

Ubicación n el noreste de Mallorca, en el municipio de Son Servera, se encuentra el pueblo del mismo nombre, en una zona conocida como Llevant. Según la tradición, el pueblo existe desde el siglo XIII, y algunos creen que debe su nombre a los ciervos que antaño merodeaban por la zona.

Recientemente se ha construido una carretera de circunvalación -antes todo el mundo que iba a la playa pasaba directamente por Son Servera-, por lo que hoy en día son menos los visitantes que llegan a ver este pequeño pueblo, excepto quizá los viernes por la mañana, cuando se celebra el mercado semanal.

Los golfistas pensarán inmediatamente en el campo de golf local cuando oigan el nombre de este pueblo: Son Servera Golf es el segundo campo de golf más antiguo de Mallorca y se inauguró en los años 60 como campo de 9 hoyos, pero se amplió a 18 hoyos en 2012. Desde aquí se puede acceder fácilmente a otros campos de golf en Canyamel y Capdepera.

El municipio de Son Servera también incluye la popular localidad de Cala Millor, con su larga playa de arena, situada entre la localidad más pequeña de Cala Bona y la reserva natural de Sa Punta de n'Amer. En el Auditorio Sa Màniga de Cala Millor se celebran numerosos actos culturales, como ballet, teatro y conciertos.

Desde Son Servera se puede llegar rápidamente en coche al bonito pueblo de Artà, que también es muy popular entre los visitantes de Alemania. Este pueblo es muy popular no sólo por su cestería, sino también por el animado mercado semanal de los martes por la mañana, en verano el número de puestos del mercado se duplica.
Certificado energético
Energieausweis Skala Energieausweis Zeiger
Año de constr. 1920
Condición Renovación necesaria
Certificado energético En proceso
Más opciones Su/s persona/s de contacto Solicitud de contacto

¿Desea ponerse en contacto con nosotros? Estaremos encantados de recibir cualquier mensaje. Sólo tiene que utilizar el siguiente formulario y nos pondremos en contacto con usted lo antes posible.

Los campos marcados con * son campos obligatorios y tienen que ser completado.

Diese Immobilien könnten Sie ebenfalls interessieren
  • Musterplan
Casa de pueblo en Son Servera, para reformar, c ...
en Son Servera
Precio de compra 189.000 €
  • Wohnzimmer
Casa de pueblo en el centro de Son Servera
en Son Servera
Precio de compra 195.000 €